Bliss Ville

Cozy Freehold 3 Bedroom Unit!

Asking: S$1,650,000 Negotiable

3 bed 2 bath

1195 sqft | $1,380.75 psf

Kembangan MRT- 490m

Freehold

About this Listing

This is a rare and beautiful 3 bedroom with 2 bath Freehold Penthouse in Kembangan / Eunos.

It offers you city fringe living with privacy in an exclusive boutique development surrounded by landed enclave.

This great for own stay or as an investment property. Rarely available !

Rare Resale Unit!
- Penthouse
- Spacious Master Bedroom and Bathroom
- Renovated - Well kept and very well maintained
- Tastefully designed
- Awesome unblocked landed view from the balcony
- Close to supermarket/amenities
- High rental demand
- Excellent connectivity via major expressway like PIE

Location
69H Lorong Melayu 417030
Eunos / Geylang / Paya Lebar (D14)

Viewings and Enquiries

For viewing and enquiries, call our listing agent at

+65-9728-2278

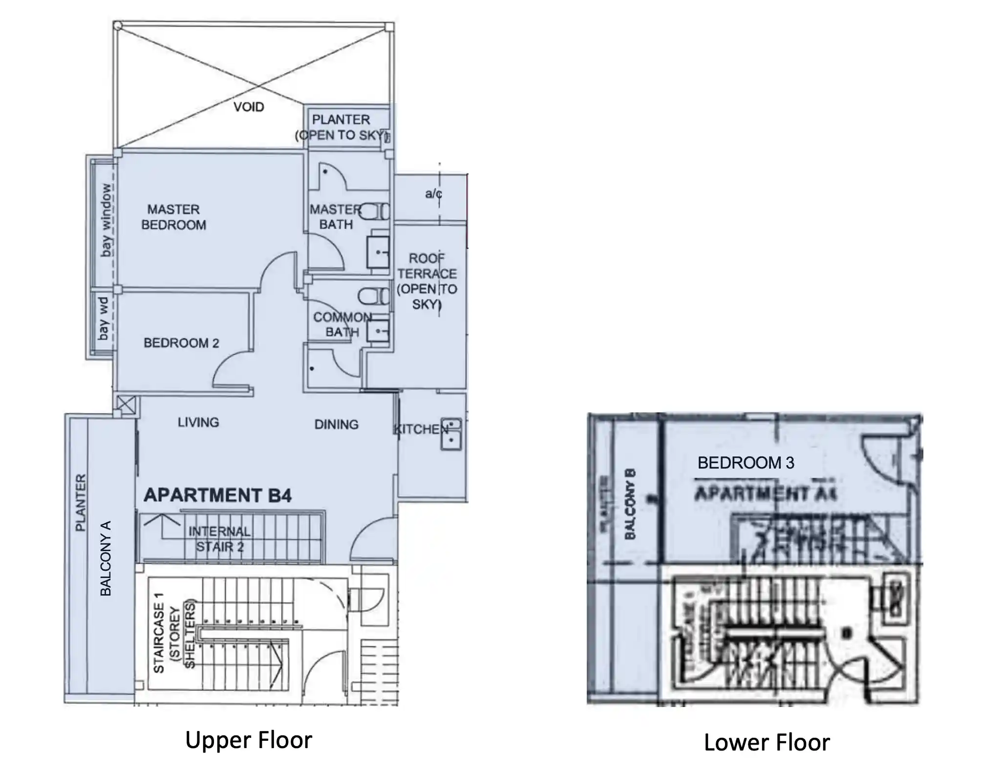
Floor Plan

1195 sqf: 3 Bedroom | 2 Bathroom | 2 Balcony

* Sizes and areas stated are subject to actual measurement.

Virtual Tour

About this Development

Bliss Ville is a freehold boutique condominium development located at 69H Lorong Melayu in District 14 It sits in an exclusive and quiet landed enclave and was completed in year 2010. It consists of a block of 5-storey building and has a total of 18 units. This made the residence suitable for couples and small families.

Bliss Ville is well served by a network of transportation facilities. The nearest train stations are Kembangan (0.53km away), Eunos (0.79km away) and Kaki Bukit (1.24km away) MRT stations. In addition, the area also has a very efficient public transport. There are several bus services operating through the area. Bliss Ville is also well-connected by roads and expressways. Residents with vehicles can easily travel via the Geyland Road, East Coast Parkway, and Pan Island expressway to Changi International Airport, Central Business District and other parts of the city.

 

PROJECT NAME
Bliss Ville
TENURE
Freehold
TYPE
Apartment For Sale
DEVELOPER

Endo Development P/L (Subsidiary Of Teambuild Land)
TOTAL UNITS
18
TOP
2010

Surrounding Amenities

Transport

Trains (MRT & LRT)

  • Kembangan MRT (EW6) - 480m
  • Eunos MRT (EW7) - 900m

Bus Stops

  • Along Sim Ave East - 67, 854, 2, 7, 24, 25, 26, 28, 30, 33
  • Along Lengkong Tiga - 42

Schools

Primary Schools

  • Eunos Primary School - Within 1km
  • Telok Kurau Primary School - Within 1km
  • St Stephen's School - Within 1km
  • CHIJ (Katong) Primary - 1 to 2km
  • Damai Primary School - 1 to 2km
  • Haig Girls' School - 1 to 2km
  • Opera Estate Primary School - 1 to 2km
  • Tao Nan School - 1 to 2km

Secondary Schools

  •  Manjusri Secondary School
  • Ping Yi Secondary School
  • St Patrick School

Amenities

Supermarket -

  • FairPrice - 110 Lengkong Tiga (3min walk, 250m)

Food centre / eateries

  • Eunos Crescent Market and Food Centre
  • Eateries along Jln Eunos - VeganBurger, Kim's Famous Fried Hokkien Mee etc
  • Eateries along Changi Road - Seng Kee Black Chicek Herb soup etc

Shopping mall

  • PLQ Mall & Paya Lebar SQ
  • Kembangan Plaza (3.2 KM)
  • 112 Katong
  • Parkway Parade
  • Tanjong Katong Complex

Link to East Coast Park via PCN

Disclaimer

BuysingSingapore.sg takes due measures to ensure that all the information provided are as reliable as possible but will not be responsible for any wrong or inaccurate information that has been featured herein. BuysingSingapore.sg does not make any representation, endorsement, warranty or guarantee the completeness or accuracy of the information and materials provided. 

Viewings and Enquiries

For viewing and enquiries, call our listing agent at

+65-9728-2278